SITUATION (CHULMLEIGH)
Chulmleigh is a small but busy town set in the heart of rural Devon. It is the centre for an active and friendly community and offers a good range of local shops including a bakery, delicatessen/cafe, newsagent, florists, hairdressers etc, along with the excellent Chulmleigh Academy offering schooling from the ages of 3 to 16 years of age, health centre, dental surgery, Post Office, churches, library, two public houses and a community run Sports Centre and a short 18 hole golf course. The market town of South Molton to the north and Crediton to the south both offer a more comprehensive range of facilities and the local railway station at Eggesford, 2 miles, provides a rail link between Exeter and Barnstaple. Road link is via the A377 or the North Devon Link Road, which can easily be accessed at South Molton. Barnstaple, North Devon’s regional centre, and the Cathedral and University city of Exeter both offer the wide range of shopping, amenities and facilities one would expect from the county’s principal town and city. Tiverton, the M5 motorway at Junction 27 and Tiverton Parkway station, which provides a fast Intercity rail link to London Paddington, are both approximately forty-five minutes drive. There is also an international airport at Exeter.
There are excellent recreational and sporting facilities in the area with a range of Leisure Centres at South Molton, Tiverton, Crediton and Barnstaple, near-by tennis courts and clubs, local rugby, football and cricket clubs, fishing in the rivers Taw and Torridge, further near-by golf courses at Libbaton, High Bullen and Down St Mary, excellent walking and riding in all directions, racecourses at Haldon Exeter and Newton Abbot, and sailing and watersports on North Devons scenic and rugged coastline, being approximately three-quarters of an hours drive.
DESCRIPTION
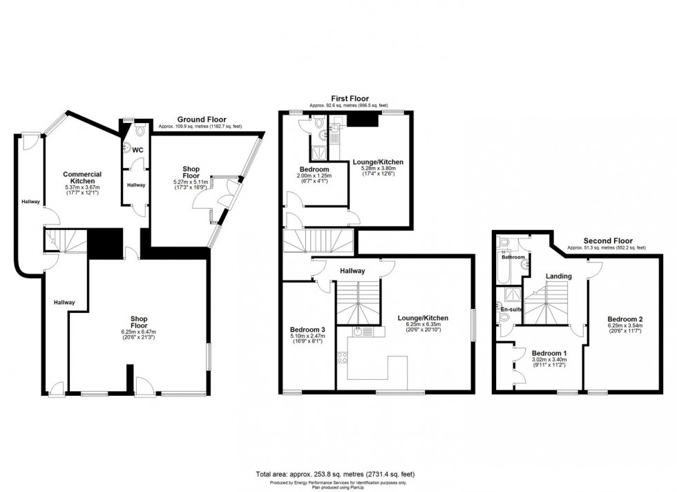
The Old Dairy is a mixed residential/commercial building situated in a good trading location in the centre of Chulmleigh currently comprising, on the ground floor, a successful delicatessen/cafe with seating for ten people, commercial Kitchen and further self contained trading area which could be let separately or incorporated into the current business. The residential accommodation is arranged over the first and second floors and currently comprises two self contained flats, a smaller one bedroom flat located on the first floor, and a larger three bedroom maisonette which extends over floors one and two. The building is Grade II Listed and is situated within a Conservation Area being of traditional stone and cob construction under a slate roof with a more recent single storey addition to the rear encompassing the separate shop under a flat roof, all with rendered and colour washed elevations and painted wood windows throughout. The Old Dairy also benefits from many original features one would expect from a property of this style and period including the original panel doors, traditional fireplace in the Sitting Room (currently blocked off) and the original stair cases to the first floor, whilst modern additions include an attractive Kitchen in the Maisonette and electric storage heating throughout. At the rear of the building there is a private walled courtyard garden which allows access out to a larger shared courtyard at the rear. Overall The Old Dairy offers the opportunity for a small successful business in the centre of Chulmleigh with scope for further expansion or investment opportunity including two letting flats and a shop.
DELICATESSEN/CAFE
From Fore Street a half glazed door opens into the Shop/Cafe allowing seating for ten with good sized trading and display area including two windows to the front and two windows to the side, display shelving, counter/chiller space with further shelving behind., inset ceiling down lighting and ceramic tiled floor. Behind the counter a doorway with a wooden strip pine half obscured glazed door opens into the
COMMERCIAL KITCHEN
With a range of units along one wall under a laminate work surface with tiled splash backs including and incorporating a one and a half bowl stainless steel sink unit with mixer tap over, space and plumbing for a dishwasher below, and space and point for an electric cooker to one side with range of wall cupboards over. In the middle of the room is a wooden island unit for food prep with two large shelving units to one side, space and point for a fridge and a freezer, multi-pane sash window to the rear overlooking the courtyard, inset shelved niche, and useful under-stairs storage cupboard. In one corner a strip pine door opens into the
INNER HALL
with coat hanging space to one side, shelf to the other, and a strip pine door into the
CLOAKROOM
Fitted with a low level WC and a wall mounted wash hand basin with tiled splash backs and pine shelf over. The Cloakroom also benefits from a multi-pane window to the rear and a terracotta tiled floor.
REAR HALL
Returning to the Kitchen, on one side a wooden fire door opens into the Rear Hall with painted panel doors and half glazed door to the rear overlooking and leading out to the rear Courtyard.
SHOP
From New Street, a half glazed door opens into a second shop which provides a further trading area, which is not currently let, although could easily be incorporated into the current business.
RESIDENTIAL ENTRANCE
From Fore Street a half glazed Front Door opens into the
ENTRANCE HALL
With electric meters and fuse boxes to one side, part painted panel walls, door to the rear hall and stairs leading to the
FIRST FLOOR LANDING
With part panel painted walls, wooden balustrade to one side and doors to Flats 1 and 2
FLAT 1, ENTRANCE HALL
with doors to the Bedroom and Living Area, electric fuse boxes and smoke alarm.
BEDROOM
A double bedroom with window to the rear, hatch to roof space and half obscure glazed door opening into the
SHOWER ROOM
Fitted with a matching white suite comprising a fully tiled shower cubicle housing a 'Mira' stainless steel mixer shower with extractor fan over; wall mounted wash hand basin with tiled splash backs, chrome mixer tap, glazed shelf and mirror over; and low level WC. The Bathroom is finished with inset ceiling down lighting.
OPEN PLAN KITCHEN/LIVING AREA
A light and spacious room with window to the rear overlooking the courtyard, night storage heater, built-in storage cupboard, and an original Victorian fireplace with cast iron grate and wooden surround and mantel. On one side is a small range of matching modern units under a roll top work surface with tiled splash backs, a single drainer stainless steel sink unit and mixer tap, a wall mounted storage cupboard, space and plumbing for a washing machine and a fridge, extractor fan and Velux window. and storage heater to one side.
FLAT 2, ENTRANCE HALL
with doors to the Open Plan Kitchen/Living Room and Bedroom 3, stairs leading to the second floor, and under stairs storage cupboard housing the electric meters and fuse boxes, and space and plumbing for a washing machine.
OPEN PLAN KITCHEN/LIVING AREA
A light and spacious 'L' shaped dual aspect room with two windows to the front overlooking Fore Street and window to the side overlooking South Molton Street. In one corner there are a range of light blue and cream gloss units to two sides under a laminate work surface with cream tiled splash backs, including and incorporating a one and a half bowl stainless steel sink unit with mixer tap and space and plumbing for a dishwasher below. On one side is a stainless steel oven and grill, with inset four ring ceramic hob over and pull out extractor fan set between a range of matching wall cupboards, space and point for a fridge/freezer. Beyond the Kitchen area is space for a six-seater dining room table with night storage heater to one side.
BEDROOM 3
A double bedroom with window to the front night storage heater and painted panelling on one wall.
SECOND FLOOR LANDING
Returning to the Entrance Hall, easy turn stairs with wooden handrail to one side lead to the Second Floor Landing with doors to Bedrooms 1 and 2 and a Bathroom, night storage heater, hatch to roof space.
MASTER BEDROOM
A good sized double bedroom with sash window to the front overlooking Fore Street with night storage heater to one side.
BEDROOM 2
Another double Bedroom with window to the front overlooking Fore Street and night storage heater. At one end doors open into a built in wardrobes fitted with hanging rails and storage shelving to one side, and an Airing Cupboard housing the factory lagged hot water cylinder with electric immersion heater. In one corner a further door opens into an
EN-SUITE SHOWER ROOM
With shower panelled walls and matching white suite comprising a corner shower cubicle fitted with a Mira 'Event' electric shower and glazed shower screen to two sides; wall mounted wash hand basin with stainless steel taps, glass shelf and mirror over; and a low level WC. The Bathroom is finished with an extractor fan, heated towel rail and inset down lighting.
BATHROOM
With partially tiled walls and matching white suite comprising a panel bath with stainless steel mixer tap with telephone style shower attachment; a pedestal wash hand basin with glass shelf over stainless steel tap, and shaver point to one side; and a low level WC. The Bathroom is finished with a painted panel wall, velux window, heated towel rail, extractor fan, inset down lighting.
OUTSIDE
At the rear of the property and accessed from the Rear Hall there is a private walled courtyard with rear gate leading out to a larger shred rear courtyard, over which The Old Dairy has a pedestrian right of way.
SERVICES (SALE)
Mains electricity, mains water and mains drainage. Telephone connected subject to BT regulations.
MONEY LAUNDERING REGULATIONS
Under the Sanctions and Anti-Money Laundering Act 2018, we are required to conduct I.D./AML and proof of funds checks on all purchasers, once a sale has been agreed and before the property will be marked SSTC and a Memo of Sale issued. A fee of £25 + VAT per person applies for these checks to be carried out.
DISCLAIMER
Please be aware (1) Neither the Vendor/Landlord or their Agent will be held liable for any damage or injury which may occur during a visit to the property. Any interested parties viewing the property do so entirely at their own risk. (2) Our details are produced in good faith & all property information provided as accurately as possible with the vendors' approval prior to publishing, however they are a general guide and cannot be relied upon as factual statements. We encourage buyers to contact us with any queries about the property either prior to or after viewing. (3) All measurements, photos, and distances mentioned are approximate. (4) Any mention of appliances and/or services does not guarantee they are in full and efficient working order. (5) We are not legal professionals, we can usually provide a copy of the property title register and plan but we do not see property title deeds or other legal paperwork. Buyers should always seek advice from a qualified conveyancer about any legal issues and ownership responsibilities.

















