SITUATION
3 Bishops Drive is situated just off the A377 in a cul-de-sac of similar properties towards the outskirts of Copplestone offering a village shop, a primary school and a good farm shop. the former market town of Crediton lies approximately five miles to the east and offers a more comprehensive range of facilities including super markets, doctors surgery, primary schools, secondary schools and several restaurants. Copplestone is also situated on a very good local bus route, providing regular and easy access to Crediton and Exeter via the A377. The Cathedral and University City of Exeter is situated twelve miles to the east and offers the comprehensive range of shopping, amenities and facilities one would expect from the county's principal city. Road link is via the A377 which joins the A30 at Exeter, providing easy access to the M5 motorway whilst Exeter St David's train station provides a fast Intercity rail link to London Paddington. There is also an international airport at Exeter.
There are excellent recreational and sporting facilities in the area with a newly built local sports field in Copplestone, Leisure Centres at Crediton, Okehampton and Exeter, other near-by tennis courts and clubs, local rugby, football and cricket clubs, fishing in the rivers Taw and Torridge, near-by golf courses at Down St Mary, Crediton & Okehampton, excellent walking and riding in all directions, racecourses at Haldon Exeter and Newton Abbot, and sailing and water sports on North Devon's scenic and rugged coastline, being approximately an hour's drive
DESCRIPTION
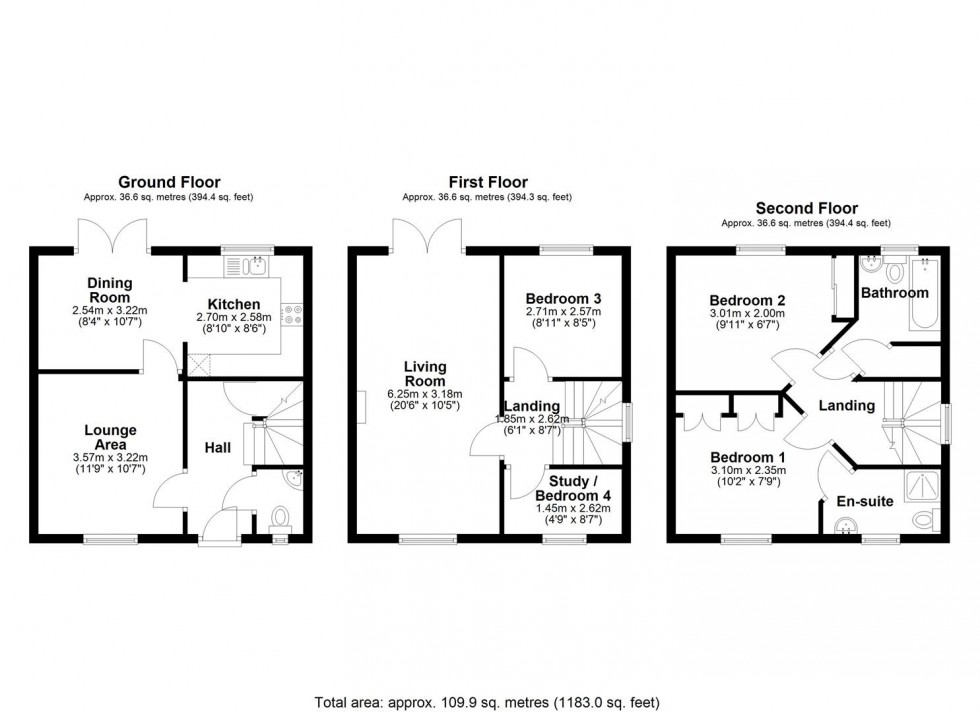
3 Bishops Drive is a modern three storey town house situated just off the A377 in a cul-de-sac of similar properties towards the outskirts of Copplestone being of modern insulated cavity brick and block construction under a tiled roof with uPVC double glazed windows and doors and mains gas central heating throughout. Internally the property offers highly versatile and adaptable accommodation arranged over three floors and briefly comprising an Entrance Hall, a Cloakroom, a Sitting Room, a Dining Room and a Kitchen on the ground floor, whilst on the second floor there is a double Bedroom, a Study/Bedroom 4 and a further Living Area/Bedroom, on the third floor there are two further Bedrooms and two Bathrooms. The property is currently let out and although in reasonable condition, would now benefit from redecorating and recarpeting throughout. Outside and to the side of 3 Bishops Drive there is off road parking for two cars providing access into the Single Garage with concrete floor, metal up and over door and pedestrian door leading out to the Rear Garden, which is walled and mainly laid to lawn with paved patio at on end giving access to the French Doors into the Dining Room.
ENTRANCE
From the front, a short paved path leads up to the uPVC double glazed Front Door opening into the
ENTRANCE HALL
with doors to the Cloakroom and Sitting Room, and stairs leading to the First Floor. The Entrance Hall also benefits from a useful understairs storage cupboard, an oak board floor, a radiator and a smoke alarm.
CLOAKROOM
fitted with a low level WC set below and obscure glazed window to the front, and a corner wash hand basin with tiled splash backs and radiator to one side. The room also benefits from an oak board floor.
SITTING ROOM
with window to the front, coved ceiling, radiator, TV point and oak board floor. In one corner a door leads through to the
DINING ROOM
A good sized room allowing enough space for a 6 seater Dining Room table with ceramic tiled floor, radiator and fully glazed French Doors overlooking and leading out to the garden. On one side a wide archway leads into the
KITCHEN
fitted with a range of matching units to three sides under a laminate work surface with tiled splashbacks including and incorporating a one and a half bowl single drainer stainless steel sink unit with mixer tap set below a window to the rear overlooking the garden with space and plumbing for a washing machine and an integrated dishwasher below. On one side there is built-in stainless steel single oven and grill with inset mains gas hob and pull-out extractor fan over set between a range of matching wall units. The Kitchen is finished with an integrated fridge/freezer, inset ceiling down lighters and ceramic tiled floor.
STAIRS AND FIRST FLOOR LANDING
Returning to the Entrance Hall, stairs lead to the First Floor Landing with doors leading off to all first floor rooms, window to the side and smoke alarm
RECEPTION ROOM/BEDROOM
A good sized dual aspect room that runs the full depth of the house with window to the front and fully glazed French Door to the rear opening onto a juliet balcony overlooking the garden. The room is currently used as a bedroom with separate study but could be utilised in a variety of ways benefitting from a TV point and radiator.
BEDROOM 3
A double bedroom with window to the rear with radiator below and TV point.
BEDROOM 4/STUDY
Currently used as a Study with window to the front with radiator below.
SECOND FLOOR LANDING
From the first floor landing stairs lead to the second floor landing with doors off to all second floor rooms, window to the side and smoke alarm.
BEDROOM 1
A good sized double bedroom with window to the front with radiator below, range of built-in wardrobes and door to the
EN-SUITE SHOWER ROOM
with partially tiled walls and matching white suite comprising a fully tiled shower cubicle housing a stainless steel mixer shower with glazed pivotal door to one side; a pedestal wash hand basin set below a window to the side with radiator below; and a low level WC. The shower room is finished with a heated towel rail and an extractor fan.
BEDROOM 2
Another double bedroom with window to the rear overlooking the garden with radiator below and built-in double wardrobe.
BATHROOM
with partially tiled walls and matching white suite comprising a panel bath with tiled splash backs and mixer shower over; low level WC and pedestal wash hand basin. The Bathroom is finished with an obscure glazed window to the rear, radiator and extractor fan. On one side is the Airing Cupboard fitted with the 'Vestmann' mains gas boiler providing domestic hot water and servicing radiators.
OUTSIDE
From the cul-de-sac a short paved path leads through a small front garden of 3 Bishops Drive to the Front Door, being mainly laid to lawn with mature hedging to the front and side. At the rear of the property there is a larger enclosed walled garden which is also mainly laid to lawn with two paved patio areas creating ideal Summer seating areas. On one side a pedestrian door opens into the Garage with concrete floor, light and power connected and metal up and over vehicular door. 3 Bishops Drive also benefits from parking for two vehicles.
SERVICES & COUNCIL TAX
Mains electricity, mains gas, mains water and mains drainage.
Satellite available via Sky.
Broadband speed is Basic 16 Mbps and Ultrafast 1800 Mbps. Mobile Phone coverage by EE, 02 and Vodaphone (info taken from ofcom checker, please check suitability/connections with your own provider) Council Tax Band D - £2,506.27p.a. for 2025/26
VIEWING & DIRECTIONS
Strictly by appointment through The Keenor Estate Agent. Please contact us to arrange this and discuss any queries you may have concerning the property, particularly with regard to location and access to facilities for our more rural properties, before travelling.
For sat nav purposes - please use the property address or postcode.
What3words - fortified.curries.crystal
MONEY LAUNDERING REGULATIONS
Under the Sanctions and Anti-Money Laundering Act 2018, we are required to conduct I.D./AML and proof of funds checks on all purchasers, once a sale has been agreed and before the property will be marked SSTC and a Memo of Sale issued. A fee of £25 + VAT per person applies for these checks to be carried out.
DISCLAIMER
Please be aware (1) Neither the Vendor/Landlord or their Agent will be held liable for any damage or injury which may occur during a visit to the property. Any interested parties viewing the property do so entirely at their own risk. (2) Our details are produced in good faith & all property information provided as accurately as possible with the vendors' approval prior to publishing, however they are a general guide and cannot be relied upon as factual statements. We encourage buyers to contact us with any queries about the property either prior to or after viewing. (3) All measurements, photos, and distances mentioned are approximate. (4) Any mention of appliances and/or services does not guarantee they are in full and efficient working order. (5) We are not legal professionals, we can usually provide a copy of the property title register and plan but we do not see property title deeds or other legal paperwork. Buyers should always seek advice from a qualified conveyancer about any legal issues and ownership responsibilities.













